Beschrijving

Ruime hoekwoning met garage en schuur!

Ben je op zoek naar een fijne plek waar je met je gezin kunt groeien? Of droom je ervan om je eerste eigen plek helemaal naar jouw zin te maken? Misschien heb je altijd al een huis gewild met een grote tuin, eigen parkeerplek én ruimte voor die eerste barbecue? Stop met zoeken, want dit gezellige hoekhuis heeft het allemaal! 

Zie jij jezelf hier al wonen? Dan wordt het tijd om de stap te zetten. Van klussen tot borrelen in de zon en kinderen die rondrennen – aan de Korenstraat 49 kan het allemaal. Benieuwd geworden? Kom vooral eens kijken en wie weet ben jij straks de trotse nieuwe bewoner van deze topwoning!

Bel snel voor een bezichtiging en maak van dit huis jouw nieuwe thuis!

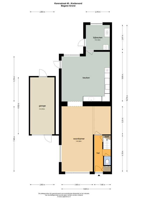
Indeling

Via de entree met meterkast, toilet, trapopgang en trapkast kom je in de lichte zeer ruime doorzonwoonkamer die overgaat in de ruime woonkeuken die van alle apparatuur is voorzien die je in een moderne keuken verwacht. Achter de keuken is de ruime bijkeuken met de achterentree een de wasmachine-aansluiting die in een bijkeuken niet mag ontbreken.

Eerste verdieping

De overloop geeft toegang tot de 3 slaapkamers en de nette badkamer met inloopdouche, wastafelmeubel en 2e toilet.

Tweede verdieping

De ruime zolderverdieping is bereikbaar via de Vlizotrap op de overloop van de eerste verdieping. Door het plaatsen van een vaste trap en vergroten van het dakraam is het zelfs mogelijk om een extra logeerkamer te realiseren.

Tuin

De achtertuin is op het westen gelegen en grenst aan het buitengebied, ideaal voor een zomerse barbecue. Naast de woning is een aangebouwde garage en achter in de tuin staat een grote stenen schuur om bijvoorbeeld te klussen of om te bouwen tot een praktijkruimte.

Bijzonderheden

Hoogtepunten op een rijtje
- Ruime eengezinswoning op een perceel van 253 m²
- Grote tuin (voor én achter) van maar liefst 162 m²
- Grenzend aan het vrije buitengebied, veel privacy!
- Eigen parkeerplaats direct bij het huis
- Ruime garage en aparte, vrijstaande schuur

Een goede voorbereiding op de aankoop van je nieuwe woning is een waardebepaling c.q. verkoopadvies van de eigen woning.
Vonder Makelaardij komt graag vrijblijvend bij je langs. Bel vandaag nog om een afspraak in te plannen.
Je kunt ons bereiken op 0227-821460.

Kenmerken