Algemeen
Wonen op Westerland: Een sfeervol & ruimtelijk thuis
Ben jij klaar om de volgende stap te zetten? Zoek je ruimte om te groeien, ben je gek op buiten zijn en wil je écht iets bijzonders, dan is Westerlanderweg 170 misschien wel het perfecte huis voor jou. Je woont midden in het rustige dorp Westerland, met lekker veel vrijheid én een riante tuin rondom je eigen karakteristieke woning. Lees gauw... Meer informatie
Ben jij klaar om de volgende stap te zetten? Zoek je ruimte om te groeien, ben je gek op buiten zijn en wil je écht iets bijzonders, dan is Westerlanderweg 170 misschien wel het perfecte huis voor jou. Je woont midden in het rustige dorp Westerland, met lekker veel vrijheid én een riante tuin rondom je eigen karakteristieke woning. Lees gauw... Meer informatie
-
Kenmerken
Alle kenmerken Type object Woonhuis, eengezinswoning, twee onder een kap woning Bouwperiode 1941 Aangeboden sinds Donderdag 12 maart 2026 -
Locatie
Kenmerken
| Overdracht | |
|---|---|
| Referentienummer | 00524 |
| Vraagprijs | € 385.000,- k.k. |
| Aanvaarding | In overleg |
| Aangeboden sinds | Donderdag 12 maart 2026 |
| Bouw | |
|---|---|
| Type object | Woonhuis, eengezinswoning, twee onder een kap woning |
| Soort bouw | Bestaande bouw |
| Bouwperiode | 1941 |
| Dakbedekking | Bitumen, Dakpannen |
| Type dak | Samengesteld |
| Isolatievormen | Grotendeels dubbel glas |
| Oppervlaktes en inhoud | |
|---|---|
| Perceeloppervlakte | 469 m² |
| Woonoppervlakte | 107,8 m² |
| Inhoud | 381 m³ |
| Oppervlakte externe bergruimte | 30,5 m² |
| Oppervlakte gebouwgebonden buitenruimte | 9,4 m² |
| Indeling | |
|---|---|
| Aantal bouwlagen | 3 |
| Aantal kamers | 3 (waarvan 2 slaapkamers) |
| Aantal badkamers | 1 (en 1 apart toilet) |
| Locatie | |
|---|---|
| Ligging | Dichtbij openbaar vervoer, Nabij snelweg, Platteland |
| Tuin | |
|---|---|
| Type | Voortuin |
| Oriëntering | Zuidoost |
| Staat | Normaal |
| Tuin 2 - Type | Achtertuin |
| Tuin 2 - Hoofdtuin | Ja |
| Tuin 2 - Oriëntering | Zuid-west |
| Tuin 2 - Heeft een achterom | Ja |
| Tuin 2 - Staat | Normaal |
| Energieverbruik | |
|---|---|
| Energielabel | E |
| CV ketel | |
|---|---|
| CV ketel | Nefit Ecomline |
| Warmtebron | Gas |
| Bouwjaar | 2007 |
| Combiketel | Ja |
| Eigendom | Eigendom |
| Uitrusting | |
|---|---|
| Warm water | CV-ketel |
| Verwarmingssysteem | Centrale verwarming, Vloerverwarming (gedeeltelijk) |
| Ventilatie methode | Natuurlijke ventilatie |
| Keukenvoorzieningen | Inbouwapparatuur, Kookeiland |
| Badkamervoorzieningen | Inloopdouche, Ligbad, Toilet, Wastafel, Wastafelmeubel |
| Heeft kabel-tv | Ja |
| Tuin aanwezig | Ja |
| Telefoonaansluiting aanwezig | Ja |
| Beschikt over een internetverbinding | Ja |
| Heeft schuur/berging | Ja |
| Heeft een dakraam | Ja |
| Kadastrale gegevens | |
|---|---|
| Kadastrale aanduiding | Wieringen I 155 |
| Perceeloppervlakte | 469 m² |
| Omvang | Geheel perceel |
| Eigendomsituatie | Eigen grond |
Beschrijving
Wonen op Westerland: Een sfeervol & ruimtelijk thuis
Ben jij klaar om de volgende stap te zetten? Zoek je ruimte om te groeien, ben je gek op buiten zijn en wil je écht iets bijzonders, dan is Westerlanderweg 170 misschien wel het perfecte huis voor jou. Je woont midden in het rustige dorp Westerland, met lekker veel vrijheid én een riante tuin rondom je eigen karakteristieke woning. Lees gauw verder, want jong gezin of starter: deze plek gaat je zeker verrassen!
Samengevat
Een buitenkans voor starters en jonge gezinnen; geen standaard nieuwbouwhuis, maar eentje met karakter én ruimte; een hartelijke thuisbasis voor je gezin of de eerste stap samen.
Kom je snel kijken? Westerlanderweg 170 in Westerland staat voor je klaar. Pak je kans en maak een afspraak – voordat een ander ermee vandoor gaat!
Ben jij klaar om de volgende stap te zetten? Zoek je ruimte om te groeien, ben je gek op buiten zijn en wil je écht iets bijzonders, dan is Westerlanderweg 170 misschien wel het perfecte huis voor jou. Je woont midden in het rustige dorp Westerland, met lekker veel vrijheid én een riante tuin rondom je eigen karakteristieke woning. Lees gauw verder, want jong gezin of starter: deze plek gaat je zeker verrassen!
Samengevat
Een buitenkans voor starters en jonge gezinnen; geen standaard nieuwbouwhuis, maar eentje met karakter én ruimte; een hartelijke thuisbasis voor je gezin of de eerste stap samen.
Kom je snel kijken? Westerlanderweg 170 in Westerland staat voor je klaar. Pak je kans en maak een afspraak – voordat een ander ermee vandoor gaat!
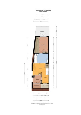
Indeling
Verrassende indeling
Dit huis voelt zich helemaal thuis in de categorie “eengezinswoning” – logisch als je kijkt naar de hoeveelheid ruimte die je binnen en buiten krijgt. Begint het bij binnenkomst in de lichte woonkamer bij jou ook direct te kriebelen? Een fijne plek om gezellig samen te zijn.
De woonkeuken ligt aan de straatzijde. Of je nu wel of niet een keukenprins(es) bent, het is een heerlijke plek om te kletsen over de dag. Oh, en geen zorgen over de praktische zaken: voldoende kastruimte en overal slimme hoekjes. Natuurlijk ontbreken een toilet en een ruime bijkeuken niet.
Dit huis voelt zich helemaal thuis in de categorie “eengezinswoning” – logisch als je kijkt naar de hoeveelheid ruimte die je binnen en buiten krijgt. Begint het bij binnenkomst in de lichte woonkamer bij jou ook direct te kriebelen? Een fijne plek om gezellig samen te zijn.
De woonkeuken ligt aan de straatzijde. Of je nu wel of niet een keukenprins(es) bent, het is een heerlijke plek om te kletsen over de dag. Oh, en geen zorgen over de praktische zaken: voldoende kastruimte en overal slimme hoekjes. Natuurlijk ontbreken een toilet en een ruime bijkeuken niet.
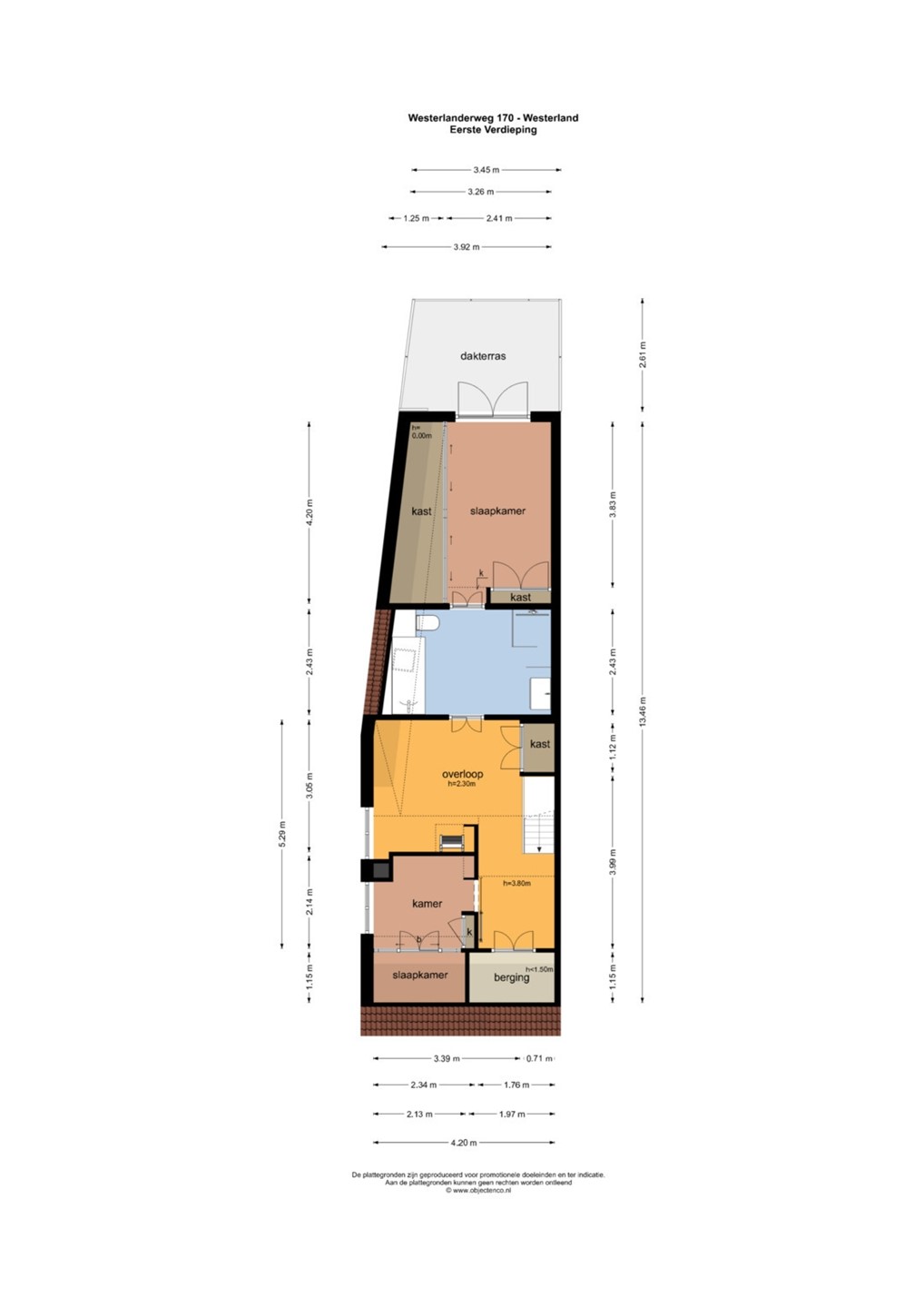
Eerste verdieping
De riante overloop brengt je niet alleen naar de twee slaapkamers en de badkamer maar via de trap kom je direct op een echte slaapzolder. Kom je toch nog een slaapplek te kort? Door een deur en een muur op de overloop te plaatsen is zo een extra slaapkamer gerealiseerd.
Balkon
Uniek dakterras als bonus
Heb je behoefte aan je ‘eigen’ plek of droom je juist van een relaxte loungehoek? Het dakterras van 12 m2 biedt nét dat beetje extra buitengevoel. S ochtends met een kop koffie, ’s avonds genieten van de ondergaande zon… hier kun je echt je eigen hoekje creëren boven het al zo riante buitenleven.
Heb je behoefte aan je ‘eigen’ plek of droom je juist van een relaxte loungehoek? Het dakterras van 12 m2 biedt nét dat beetje extra buitengevoel. S ochtends met een kop koffie, ’s avonds genieten van de ondergaande zon… hier kun je echt je eigen hoekje creëren boven het al zo riante buitenleven.
Tuin
Buitenleven op z’n best
Nu het mooiste stukje Westerlanderweg 170: de tuin. Wat een lap grond! Met een perceel van 469 m² en een achtertuin van maar liefst 30 (!) meter diep kun je eindelijk álles uit het buitenleven halen. De tuin ligt perfect op de zon, dus pak het leesboek of de barbecue er maar vast bij. Heb je groene vingers? Hier kun je je hart ophalen. Kinderen kunnen naar hartenlust ravotten zonder zich om nieuwsgierige buren te hoeven bekommeren, want privacy heb je hier in overvloed.
Nu het mooiste stukje Westerlanderweg 170: de tuin. Wat een lap grond! Met een perceel van 469 m² en een achtertuin van maar liefst 30 (!) meter diep kun je eindelijk álles uit het buitenleven halen. De tuin ligt perfect op de zon, dus pak het leesboek of de barbecue er maar vast bij. Heb je groene vingers? Hier kun je je hart ophalen. Kinderen kunnen naar hartenlust ravotten zonder zich om nieuwsgierige buren te hoeven bekommeren, want privacy heb je hier in overvloed.
Bijzonderheden
Een goede voorbereiding op de aankoop van je nieuwe woning is een waardebepaling c.q. verkoopadvies van de eigen woning.
Vonder Makelaardij komt graag vrijblijvend bij je langs. Bel vandaag nog om een afspraak in te plannen.
Je kunt ons bereiken op 0227-821460.
Vonder Makelaardij komt graag vrijblijvend bij je langs. Bel vandaag nog om een afspraak in te plannen.
Je kunt ons bereiken op 0227-821460.
Social
Vind ons leuk op Facebook
Volg ons op Twitter
YouTube webpagina