Datum open huis: vrijdag 7 november 2025 16:00 - 18:00
Unieke kans voor starter!
Algemeen
Gezellig wonen op de rand van het dorp
Sta je aan het begin van jouw woonavontuur en droom je ervan om een eigen huis met ruimte, licht en uitzicht te bewonen? Pak dan nu je kans! Op Zandburen 23 in Hippolytushoef vind je deze tussenwoning uit 1959 waar je écht alle kanten mee op kunt. Het huis staat op een mooi perceel met een heerlijk diepe achtertuin van maar liefst 175 m². Hier voel je j... Meer informatie
Sta je aan het begin van jouw woonavontuur en droom je ervan om een eigen huis met ruimte, licht en uitzicht te bewonen? Pak dan nu je kans! Op Zandburen 23 in Hippolytushoef vind je deze tussenwoning uit 1959 waar je écht alle kanten mee op kunt. Het huis staat op een mooi perceel met een heerlijk diepe achtertuin van maar liefst 175 m². Hier voel je j... Meer informatie
-
Kenmerken
Alle kenmerken Type object Woonhuis, eengezinswoning, tussenwoning Bouwperiode 1959 Status Nieuw in verkoop Aangeboden sinds Vrijdag 31 oktober 2025 -
Locatie
Kenmerken
| Overdracht | |
|---|---|
| Referentienummer | 00516 |
| Vraagprijs | € 252.500,- k.k. |
| Status | Nieuw in verkoop |
| Aanvaarding | In overleg |
| Aangeboden sinds | Vrijdag 31 oktober 2025 |
| Bouw | |
|---|---|
| Type object | Woonhuis, eengezinswoning, tussenwoning |
| Soort bouw | Bestaande bouw |
| Bouwperiode | 1959 |
| Dakbedekking | Dakpannen |
| Type dak | Zadeldak |
| Isolatievormen | Grotendeels dubbel glas, Muurisolatie |
| Oppervlaktes en inhoud | |
|---|---|
| Perceeloppervlakte | 220 m² |
| Woonoppervlakte | 75 m² |
| Inhoud | 300 m³ |
| Oppervlakte overige inpandige ruimten | 24 m² |
| Oppervlakte externe bergruimte | 7 m² |
| Indeling | |
|---|---|
| Aantal bouwlagen | 3 |
| Aantal kamers | 4 (waarvan 3 slaapkamers) |
| Aantal badkamers | 1 (en 1 apart toilet) |
| Locatie | |
|---|---|
| Ligging | Dichtbij openbaar vervoer, In woonwijk, Nabij school, Nabij snelweg, Vrij uitzicht |
| Tuin | |
|---|---|
| Type | Achtertuin |
| Oriëntering | West |
| Staat | Normaal |
| Tuin 2 - Type | Achtertuin |
| Tuin 2 - Hoofdtuin | Ja |
| Tuin 2 - Oriëntering | Oosten |
| Tuin 2 - Heeft een achterom | Ja |
| Tuin 2 - Staat | Normaal |
| Energieverbruik | |
|---|---|
| Energielabel | D |
| CV ketel | |
|---|---|
| CV ketel | Vaillant EcoTec Classic |
| Warmtebron | Gas |
| Bouwjaar | 2015 |
| Combiketel | Ja |
| Eigendom | Eigendom |
| Uitrusting | |
|---|---|
| Warm water | CV-ketel |
| Verwarmingssysteem | Centrale verwarming |
| Ventilatie methode | Natuurlijke ventilatie |
| Keukenvoorzieningen | Inbouwapparatuur |
| Badkamervoorzieningen | Inloopdouche, Toilet, Wastafel |
| Heeft kabel-tv | Ja |
| Heeft een rookkanaal | Ja |
| Tuin aanwezig | Ja |
| Telefoonaansluiting aanwezig | Ja |
| Beschikt over een internetverbinding | Ja |
| Heeft schuur/berging | Ja |
| Heeft een dakraam | Ja |
| Kadastrale gegevens | |
|---|---|
| Kadastrale aanduiding | Wieringen C 7081 |
| Perceeloppervlakte | 220 m² |
| Omvang | Geheel perceel |
| Eigendomsituatie | Eigen grond |
Beschrijving
Gezellig wonen op de rand van het dorp
Sta je aan het begin van jouw woonavontuur en droom je ervan om een eigen huis met ruimte, licht en uitzicht te bewonen? Pak dan nu je kans! Op Zandburen 23 in Hippolytushoef vind je deze tussenwoning uit 1959 waar je écht alle kanten mee op kunt. Het huis staat op een mooi perceel met een heerlijk diepe achtertuin van maar liefst 175 m². Hier voel je je meteen thuis.
Een zonnige tuin om in te dromen
En als je van buitenleven houdt, word je hier héél gelukkig. De achtertuin is ontzettend diep én zonnig. Barbecueën met vrienden, kinderen die kunnen spelen (of misschien wil je zelf een trampoline of een moestuintje?), je huisdier dat alle ruimte heeft. Of gewoon na een dag werken even bijkomen met een drankje in het avondzonnetje. Met zoveel vierkante meters tuin heb je altijd een rustig plekje.
Ruimte voor iedereen
De woning telt meerdere slaapkamers, een gezellige woonkamer en een aparte keuken. Door de grote ramen komt er volop daglicht binnen, wat zorgt voor een fijne, huiselijke sfeer. Hier kun je relaxen, je vrienden uitnodigen of juist even lekker alleen zijn.
Alles binnen handbereik
Wonen in Hippolytushoef betekent rustig leven met de belangrijkste voorzieningen in de buurt. Winkels, scholen en sportverenigingen: alles is lekker dichtbij. En wil je eens een dagje de stad in? Met de auto zit je zo op de uitvalswegen.
Kun je niet wachten om je verhuisdozen uit te pakken op Zandburen 23? Bel of mail ons, kom langs en laat je verrassen door alle mogelijkheden die dit huis jou biedt. Dit is jouw kans om groots te starten met een fijn huis én een geweldige tuin!
Sta je aan het begin van jouw woonavontuur en droom je ervan om een eigen huis met ruimte, licht en uitzicht te bewonen? Pak dan nu je kans! Op Zandburen 23 in Hippolytushoef vind je deze tussenwoning uit 1959 waar je écht alle kanten mee op kunt. Het huis staat op een mooi perceel met een heerlijk diepe achtertuin van maar liefst 175 m². Hier voel je je meteen thuis.
Een zonnige tuin om in te dromen
En als je van buitenleven houdt, word je hier héél gelukkig. De achtertuin is ontzettend diep én zonnig. Barbecueën met vrienden, kinderen die kunnen spelen (of misschien wil je zelf een trampoline of een moestuintje?), je huisdier dat alle ruimte heeft. Of gewoon na een dag werken even bijkomen met een drankje in het avondzonnetje. Met zoveel vierkante meters tuin heb je altijd een rustig plekje.
Ruimte voor iedereen
De woning telt meerdere slaapkamers, een gezellige woonkamer en een aparte keuken. Door de grote ramen komt er volop daglicht binnen, wat zorgt voor een fijne, huiselijke sfeer. Hier kun je relaxen, je vrienden uitnodigen of juist even lekker alleen zijn.
Alles binnen handbereik
Wonen in Hippolytushoef betekent rustig leven met de belangrijkste voorzieningen in de buurt. Winkels, scholen en sportverenigingen: alles is lekker dichtbij. En wil je eens een dagje de stad in? Met de auto zit je zo op de uitvalswegen.
Kun je niet wachten om je verhuisdozen uit te pakken op Zandburen 23? Bel of mail ons, kom langs en laat je verrassen door alle mogelijkheden die dit huis jou biedt. Dit is jouw kans om groots te starten met een fijn huis én een geweldige tuin!
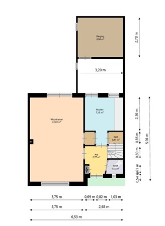
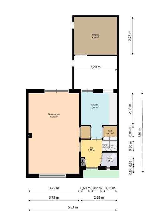
Indeling
Via de hal met meterkast, toilet en trapopgang komt u in de straatgerichte woonkamer (ca. 23m2) met dubbele tuindeuren en de keuken. Via keuken gaat u naar de bijkeuken met achterentree en toegang tot de (fietsen)berging (ca. 9m2).
Keuken
De lichte keuken uit 2011 met kelderkast is voorzien van 3 bovenkastjes, 3 onderkastjes en een wasemkap.
Bijkeuken
De bijkeuken is voorzien een wasmachine aansluiting en een plavuizen vloer.
Keuken
De lichte keuken uit 2011 met kelderkast is voorzien van 3 bovenkastjes, 3 onderkastjes en een wasemkap.
Bijkeuken
De bijkeuken is voorzien een wasmachine aansluiting en een plavuizen vloer.
Eerste verdieping
Ruime overloop, 3 slaapkamers van respectievelijk 11 , 11 en 5,5m2 en een nette badkamer.
Badkamer
De nette badkamer uit 2011 bestaat uit een douchehoek en vaste wastafel.
Badkamer
De nette badkamer uit 2011 bestaat uit een douchehoek en vaste wastafel.
Overige verdiepingen
Zolder
De zolder is bereikbaar via de vlizo-trap op de overloop van de eerste verdieping en is volledig afgetimmerd. Ook treft u hier de opstelling voor de HR-combiketel.
De zolder is bereikbaar via de vlizo-trap op de overloop van de eerste verdieping en is volledig afgetimmerd. Ook treft u hier de opstelling voor de HR-combiketel.
Tuin
De diepe en zonnige tuin van ca. 21 meter is op het oosten gelegen en voorzien van een gazon, terras, borders, sierbestrating en een houten schutting.
Bijzonderheden
Geïnteresseerden
Als zich gelijktijdig meerdere geïnteresseerden aandienen geldt de volgende rangorde:
1) huurders die een huurwoning van Beter Wonen achterlaten;
2) lokale koopstarters niet zijnde huurders;
3) overige gegadigden.
Als meerdere geïnteresseerden zijn binnen de genoemde rangorde geldt het principe van “het beste bod”. Dit "beste bod" kan éénmalig schriftelijk, door de geïnteresseerde(n) worden ingediend bij Vonder Makelaardij.
Prijsvorming en zelfbewoningsplicht
Beter Wonen hanteert geen korting en geen terugkoopregeling bij de verkoop van haar woningen. Voorts is de getaxeerde verkoopprijs niet onderhandelbaar en volgt Beter Wonen de verkoopvoorwaarden zoals beschreven in de Woningwet. Hiervoor wordt in de verkoopakte een passage opgenomen in het kader van eigen bewoning en gebruik voor de kopende partij.
Zelfbewoningsplicht
Zelfbewoningsplicht is de vereiste dat de koper of een familielid in de eerste graad zelf de woning bewoont, voor een periode van ten minste drie jaar. Onder een eerstegraads familielid wordt verstaan: zowel bloedverwantschap in de eerste graad namelijk de (adoptie)ouder(s) en (adoptie)kinderen, als aanverwantschap in de eerste graad zoals de (adoptie)ouder(s) van de partner, de (adoptie)kind(eren) van de partner en de partner van de (adoptie)kinderen (schoonzoon of schoondochter). Hij/zij is niet bevoegd het verkochte of een gedeelte daarvan te verhuren of anderszins in gebruik af te staan. Verkoper kan koper in bijzondere gevallen toestemming verlenen om van het voormelde af te wijken. Koper dient hiertoe een verzoek in te dienen bij verkoper middels aangetekend schrijven.
Bij overtreding van het vorenstaande verbeurt koper zonder nadere ingebrekestelling en zonder rechtelijke tussenkomst een direct opeisbare boete van vijftig duizend euro (€ 50.000,00), door het enkele feit van niet-nakoming of overtreding van het vorenstaande. Voor de overtreding van de regels inzake de hoofdbewoning is naast genoemde boete voor elke dag dat de overtreding voortduurt eveneens een boete verschuldigd van twee honderd vijftig euro (€ 250,00) per dag.
Anti-speculatiebeding
Als de koper binnen drie jaar na het ondertekenen van de akte van levering de woning aan een derde overdraagt, zal hij gehouden zijn om 10% van de huidige koopsom aan de verkoper te betalen. Verkoper kan koper in bijzondere gevallen toestemming verlenen om van het voormelde af te wijken. Koper dient hiertoe een verzoek in te dienen bij verkoper middels aangetekend schrijven.
Een goede voorbereiding op de aankoop van je nieuwe woning is een waardebepaling c.q. verkoopadvies van de eigen woning.
Vonder Makelaardij komt graag vrijblijvend bij je langs. Bel vandaag nog om een afspraak in te plannen.
Je kunt ons bereiken op 0227-821460.
Als zich gelijktijdig meerdere geïnteresseerden aandienen geldt de volgende rangorde:
1) huurders die een huurwoning van Beter Wonen achterlaten;
2) lokale koopstarters niet zijnde huurders;
3) overige gegadigden.
Als meerdere geïnteresseerden zijn binnen de genoemde rangorde geldt het principe van “het beste bod”. Dit "beste bod" kan éénmalig schriftelijk, door de geïnteresseerde(n) worden ingediend bij Vonder Makelaardij.
Prijsvorming en zelfbewoningsplicht
Beter Wonen hanteert geen korting en geen terugkoopregeling bij de verkoop van haar woningen. Voorts is de getaxeerde verkoopprijs niet onderhandelbaar en volgt Beter Wonen de verkoopvoorwaarden zoals beschreven in de Woningwet. Hiervoor wordt in de verkoopakte een passage opgenomen in het kader van eigen bewoning en gebruik voor de kopende partij.
Zelfbewoningsplicht
Zelfbewoningsplicht is de vereiste dat de koper of een familielid in de eerste graad zelf de woning bewoont, voor een periode van ten minste drie jaar. Onder een eerstegraads familielid wordt verstaan: zowel bloedverwantschap in de eerste graad namelijk de (adoptie)ouder(s) en (adoptie)kinderen, als aanverwantschap in de eerste graad zoals de (adoptie)ouder(s) van de partner, de (adoptie)kind(eren) van de partner en de partner van de (adoptie)kinderen (schoonzoon of schoondochter). Hij/zij is niet bevoegd het verkochte of een gedeelte daarvan te verhuren of anderszins in gebruik af te staan. Verkoper kan koper in bijzondere gevallen toestemming verlenen om van het voormelde af te wijken. Koper dient hiertoe een verzoek in te dienen bij verkoper middels aangetekend schrijven.
Bij overtreding van het vorenstaande verbeurt koper zonder nadere ingebrekestelling en zonder rechtelijke tussenkomst een direct opeisbare boete van vijftig duizend euro (€ 50.000,00), door het enkele feit van niet-nakoming of overtreding van het vorenstaande. Voor de overtreding van de regels inzake de hoofdbewoning is naast genoemde boete voor elke dag dat de overtreding voortduurt eveneens een boete verschuldigd van twee honderd vijftig euro (€ 250,00) per dag.
Anti-speculatiebeding
Als de koper binnen drie jaar na het ondertekenen van de akte van levering de woning aan een derde overdraagt, zal hij gehouden zijn om 10% van de huidige koopsom aan de verkoper te betalen. Verkoper kan koper in bijzondere gevallen toestemming verlenen om van het voormelde af te wijken. Koper dient hiertoe een verzoek in te dienen bij verkoper middels aangetekend schrijven.
Een goede voorbereiding op de aankoop van je nieuwe woning is een waardebepaling c.q. verkoopadvies van de eigen woning.
Vonder Makelaardij komt graag vrijblijvend bij je langs. Bel vandaag nog om een afspraak in te plannen.
Je kunt ons bereiken op 0227-821460.
Social
Vind ons leuk op Facebook
Volg ons op Twitter
YouTube webpagina